티스토리 뷰
목차
2월 5일부터 특별공급 청약이 시작되는 투기과열지구 서울 서초구 잠원동의 신반포 메이플 자이 아파트가 총 3,000여 세대 중 167세대만 일반 분양으로 나왔습니다. 오늘은 신반포 메이플 자이의 분양가와 평면도, 단지배치도에 대해 알아보겠습니다.

신반포 메이플 자이 분양가 및 납부일정
신반포 메이플 자이 분양가는 아래와 같습니다.
![]() |
![]() |
![]() |
![]() |
✔전용면적 43타입(17평)은 최고층 기준으로 12억초
✔전용면적 49타입(21평)은 최고층 기준으로 15억초
✔전용면적 59타입은 2층 기준 17억초반( 2층 4세대가 일반분양 물량 전부)
서울 강남 3구 중 하나인 서초구의 대단지 초역세권 아파트가 평당 6천만원인데 주변시세는 과연 어떨까요? 로또 분양이라고 하는 이유가 있겠죠. 어쨌든 25평도 분양가가 십억대라고 하면 비싸보이지 않습니다.
신반포 메이플 자이 주변 아파트 시세가 궁금하시다면 아래 버튼을 클릭하여 입지 환경과 더불어 시세 확인 해보시기 바랍니다.
✅ 분양가 납부일정
| 계약금 20% | 중도금 60% | 잔금 20% | |||||
| 계약일 | 2024.5.10 | 2024.7.10 | 2024.9.10 | 2024.11.11 | 2025.1.10 | 2025.3.10 | 입주지정일 |
✔ 계약금이 20%라 2억 4천에서 3억 4천까지 현금 납부해야 합니다. 계약일은 2/27~2/29일 3일간 입니다.
✔ 중도금은 60% 비율로 2달 간격으로 납부해야 합니다. 입주가 1년 조금 넘게 남았기 때문이죠.
✔ 잔금은 20%입니다. 지정된 입주기간 내에 입주할 날짜를 선택하여 그날 잔금까지 모두 납부해야 아파트 키를 받을 수 있습니다.
중도금은 기관 대출을 받을 수도 있습니다. 자세한 내용은 아래 링크를 클릭하여 확인하세요.
신반포 메이플 자이 발코니 확장비 시스템에어컨 비용
✅ 타입별 발코니 확장 금액 및 납부 일정

✔ 발코니 확장비는 비교적 저렴합니다. 납부 일정에 중도금이 있습니다. 보통은 계약금, 잔금으로만 구성된 경우가 많은데요. 중도금 일정 잘 살펴보셔야 겠습니다.
✅ 시스템에어컨 공급금액 및 납부일정
유료 옵션 중에서는 발코니 확장 금액과 더불어 가장 많이 선택하는 시스템에어컨 금액을 가져왔습니다.

발코니 확장비와 마찬가지로 납부일정에 중도금이 20% 있으니 날짜에 맞춰 잊지 않고 납부하셔야겠습니다.
신반포 메이플 자이 평면도
✅ 평형 배치도 및 타입 평면도
![]() |
![]() |
![]() |
![]() |
![]() |
![]() |
![]() |
![]() |
![]() |
43타입은 방이 2개네요. 49타입은 방이 3개로 실용적입니다. 59타입은 25평에서 흔치않은 4Bay입니다.
작은 평수인데도 구조가 잘 나온 편인 것 같습니다.
신반포 메이플 자이 단지배치도
이번에는 단지배치도를 살펴보겠습니다. 총 29개동이고 평형별 단지 배치가 어떻게 되어 있는지 단지배치도를 통해 알 수 있습니다.
메이플 자이는 신반포 4지구 재건축으로 총 3,307세대 중에 청약 물량은 단 167세대 뿐입니다.
평형별 동, 호수가 어떻게 배치되어 있는지 보실게요.
✅ 동 호수 배치도
![]() |
![]() |
![]() |
![]() |
![]() |
|
![]() |
![]() |
![]() |
![]() |
![]() |
![]() |
이번 분양 물량은 소형평수로 가장 큰 평수가 25평이지만 전용면적 80제곱미터부터 135제곱미터까지 대형평수도 있습니다. 30평대부터는 모두 조합원 물량이네요. 분양으로 나오지 않아 아쉽습니다.
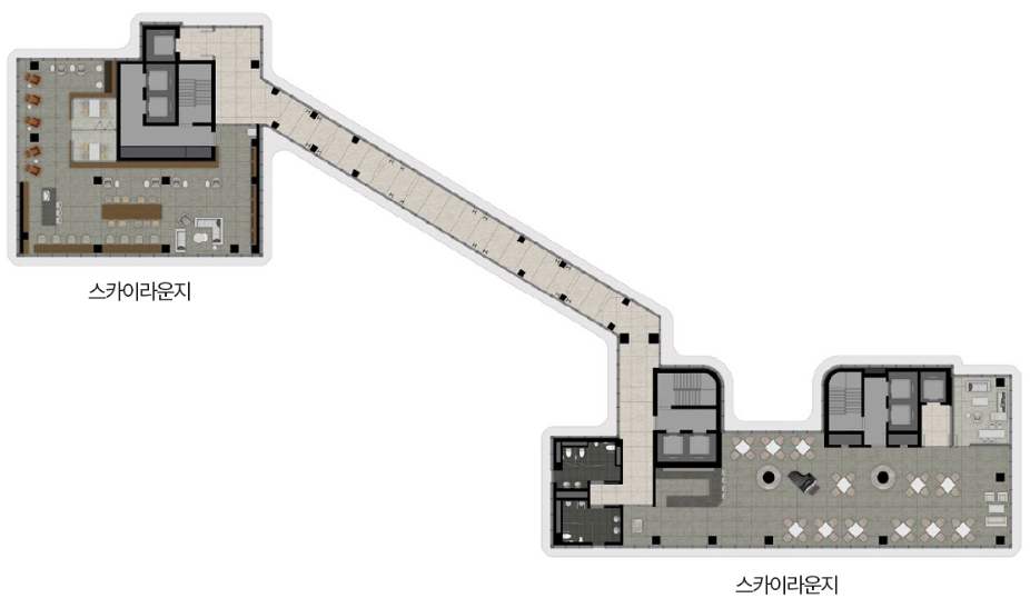
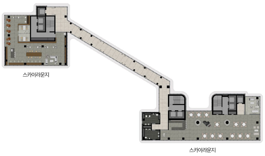
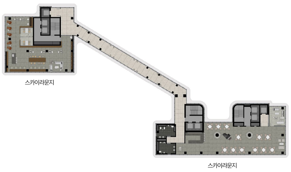
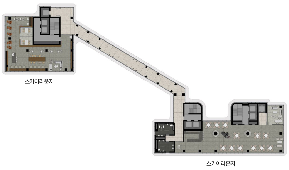
신반포 메이플 자이 커뮤니티 시설
신반포 메이플 자이 커뮤니티 궁금하시죠? 고급화 된 커뮤니티 시설, 그리고 대단지에 걸맞는 크기가 눈에 띠네요.
![]() |
![]() |
![]() |
![]() |
![]() |
![]() |
![]() |
![]() |
![]() |
![]() |
![]() |
![]() |
자이답게 커뮤니티 시설도 눈길을 끕니다. 수영장, 그리고 클럽 클라우드라는 스카이라운지와 동을 잇는 스카이브릿지가 참 멋있습니다.
이상으로 이번주 청약하는 신반포 메이플 자이 아파트의 분양가와 분양대금 납부 일정 살펴보았습니다.
특별공급, 일반공급에 대한 자세한 내용은 아래 버튼을 클릭하여 내용 꼼꼼히 확인하셔서 불이익 없이 무사히 청약 잘 하시기 바랍니다.








































